GB/T 25206.2-2010 復合夾芯板建筑體燃燒性能試驗 第2部分:大室法
- 發表時間:2022-11-23
- 來源:共立消防
- 人氣:
1 范圍
GB/T 25206的本部分規定了用于評價復合夾芯板建筑體燃燒性能的試驗方法。通過模擬室內火災條件,在建筑房間角落處,用特定火焰直接作用于制品來評價建筑體復合夾芯板表面或內部的火焰傳播特性。本試驗不用作對制品耐火性能的評估。
本部分規定了復合夾芯板建筑體可采用自支撐和框架支撐等結構,但是只適用于對建筑的墻、吊頂或屋面結構進行測試。
2 規范性引用文件
下列文件中的條款通過GB/T 25206的本部分的引用而成為本部分的條款。凡是注日期的引用文件,其隨后所有的修改單(不包括勘誤的內容)或修訂版均不適用于本部分,然而,鼓勵根據本部分達成協議的各方研究是否可使用這些文件的最新版本。凡是不注日期的引用文件,其最新版本適用于本部分。
ISO 13943 消防安全詞匯
IEC 60584-2 熱電偶 第2部分:允差
3 術語和定義
ISO 13943中確立的以及下列術語和定義適用于GB/T 25206的本部分。
3.1
復合材料 composite
由兩種或兩種以上單一材料組合而成的復合物,如表面有涂層的材料或層壓材料。
3.2
受火面 exposed surface
制品與試驗的熱條件鄰近的表面。
3.3
制品 product
材料、復合材料或其組件。
3.4
質量恒定 constant mass
當間隔24h的兩次連續稱量偏差不超過試樣質量的0.1%或0.1g(取兩者的較大值)時試樣的狀態。
3.5
表面制品 surface product
建筑中的墻體、吊頂、屋面的任何暴露表面。
3.6
絕熱復合夾芯板 insulating sandwichpanel
由三層或多層材料復合而成的多層制品。
注:中間一層為絕熱材料,如礦棉、玻璃棉、塑料纖維或天然材料,兩面為有保護作用的面材。面材可選擇不同的材料,可以是平板或者異型材定,應用最廣泛的是涂層鋼板。根據應用及其性能要求,復合材料通過特定的安裝連接和支撐可以由單一結構變成復雜的復合組件。
3.7
試樣 specimen
代表最終結構的組件。
4 原理
本試驗規定了在復合夾芯板建筑內部角落處,通過火焰的直接作用來評價復合夾芯板建筑體的燃燒性能的試驗方法。由于可燃氣體、復合夾芯板組件的脫落碎片或熔滴物的影響,可出現不同的火焰傳播類型,火焰可在夾芯板芯材中傳播,也可在表面或接縫處傳播。本試驗可評價下列火災危險性參數:
——火災從發生發展到轟然,建筑體所做的貢獻;
——室內火災傳播至外部、其他隔間或相鄰建筑的潛在危險性;
——結構倒塌的可能性;
試驗房間內部的火災煙氣的發展。
5 結構類型
本試驗規定了用以下兩種類型來代表實際使用中的結構和材料:
a) 框架支撐結構
復合夾芯板建筑體以機械方式固定在框架結構(通常為鋼制)的外部或內部(在板的厚度方向),吊頂或屋面可按傳統方式安裝或使用復合夾芯板,常見的例子是工業建筑的外部覆層結構。大多數情況下,這種復合夾芯板組件用于建筑的外部墻體、屋面或同時用于兩者中。
b) 自支撐結構
由復合夾芯板組件組成一個不依靠其他任何框架結構而能保持穩定性的房間或封閉空間(如建筑內的冷凍室、食物存儲室、無塵室)。通常對于建筑內部的這類結構,它的吊頂可由上部部件來固定。
6 試樣
試樣應滿足試驗所要求的數量,所有試樣應具有實際使用中結構和材料的代表性,所有試樣的拼接縫、安裝固定等結構細節都應按實際使用情況進行設置和體現。如果復合夾芯板在實際使用中有內框架或外框架,試驗時應體現這種安裝結構。
試樣在結構安裝中應符合此結構的質量要求。
如果在實際使用中,吊頂板和墻板不同,試驗時應采用實際使用的墻板與吊頂的組合來進行試驗。如果復合夾芯板組件在實際使用時有裝飾涂層或薄膜面層,則應在試樣上體現出來。
7 試驗房間設計和建造
7.1 本試驗規定了復合夾芯板建筑體燃燒性能的評價方法,復合夾芯板組件的尺寸和結構應與實際使用情況相一致。按照實際使用中制品的拼接和安裝方法對其進行評估,如果支撐件是結構的一部分,則試驗時在特定位置要使用此支撐件。如果板材是自支撐,為安全起見,應采用非連接的外部框架。
7.2 根據實際使用情況,按第6章的要求用復合夾芯板試樣建造一個實體房間(見圖1)進行試驗。試驗房間由四面垂直的墻和吊頂組成,建造在硬質的不燃地面上,房間的內部空間尺寸如下。
長:(4.8±0.05)m。
寬:(4.8±0.05)m。
高:(4.0±0.05)m。
7.3 房間的正面應設置一個門洞,其他墻上無任何通風開口,門洞大小如下。
寬:(4.8±0.05)m。
高:(2.8±0.05)m。
7.4 試驗房間可建造在室內或室外。
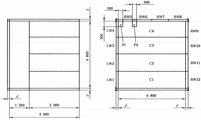
7.5 試驗前生產商應提供不同構件的整體布局圖和結構詳圖,包括樣品的拼接和任何框架連接的詳細要求。
圖2和圖3是一個安裝了內支撐框架的復合夾芯板建筑體的示意圖。
注:樣品數量和厚度根據試樣類型可與示例所要求的不同,另外,支撐架的型號也應根據實際的安裝方式來確定。
單位為毫米

a)等角視圖

b)燃燒器位置
C——吊頂板;
d——板材厚度;
P1——角落處燃燒器位置1;
P2——接縫處燃燒器位置2;
LW——左墻板;
BW——背墻板;
RW——右墻板;
FW-L——前墻過梁板。
以上為標準部分內容,如需看標準全文,請到相關授權網站購買標準正版。
-
IG541混合氣體滅火系統
IG541混合氣體滅火系統:IG-541滅火系統采用的IG-541混合氣體滅火劑是由大氣層中的氮氣(N2)、氬氣(Ar)和二氧化碳(CO2)三種氣體分別以52%、40%、8%的比例混合而成的一種滅火劑 -
二氧化碳氣體滅火系統
二氧化碳氣體滅火系統:二氧化碳氣體滅火系統由瓶架、滅火劑瓶組、泄漏檢測裝置、容器閥、金屬軟管、單向閥(滅火劑管)、集流管、安全泄漏裝置、選擇閥、信號反饋裝置、滅火劑輸送管、噴嘴、驅動氣體瓶組、電磁驅動 -
七氟丙烷滅火系統
七氟丙烷(HFC—227ea)滅火系統是一種高效能的滅火設備,其滅火劑HFC—ea是一種無色、無味、低毒性、絕緣性好、無二次污染的氣體,對大氣臭氧層的耗損潛能值(ODP)為零,是鹵代烷1211、130 -
手提式干粉滅火器
手提式干粉滅火器適滅火時,可手提或肩扛滅火器快速奔赴火場,在距燃燒處5米左右,放下滅火器。如在室外,應選擇在上風方向噴射。使用的干粉滅火器若是外掛式儲壓式的,操作者應一手緊握噴槍、另一手提起儲氣瓶上的


