MT/T 593.7-2011 人工凍土物理力學性能試驗 第7部分:人工凍土三軸蠕變試驗方法
- 發表時間:2022-10-05
- 來源:共立消防
- 人氣:
1 范圍
MT/T 593的本部分規定了人工凍土多試樣和單試樣三軸壓縮蠕變試驗用儀器、設備,試樣,基本要求,試驗步驟和計算與繪圖。
本部分適用于軸對稱三向剪切應力條件下凍結原狀土及重塑土蠕變性能的測試和計算。
2 規范性引用文件
下列文件中的條款通過MT/T 593的本部分的引用而成為本部分的條款。凡是注日期的引用文件,其隨后所有的修改單(不包括勘誤的內容)或修訂版均不適用于本部分,然而,鼓勵根據本部分達成協議的各方研究是否可使用這些文件的最新版本。凡是不注日期的引用文件,其最新版本適用于本部分。
MT/T 593.1 人工凍土物理力學性能試驗 第1部分:人工凍土試驗取樣及試樣制備方法
MT/T 593.4 人工凍土物理力學性能試驗 第4部分:人工凍土單軸抗壓強度試驗方法
MT/T 593.5 人工凍土物理力學性能試驗 第5部分:人工凍土三軸壓縮強度試驗方法
3 術語和定義
下列術語和定義適用于本標準。
3.1
人工凍土三軸蠕變 artificial frozen soil tri-axial Creep
人工凍土在三向壓縮應力不變,且軸向應力大于圍壓應力條件下,其變形隨時間延長而改變的性質。
4 試驗用儀器、設備
4.1 低溫三軸蠕變試驗儀(如圖1所示):最大軸向荷載200 kN,圍壓6 MPa(適用于土層埋深小于300 m)、12 MPa(適用于土層埋深小于700 m)及20 MPa(適用于土層埋深小于1200 m),波動度不超過10kPa。
4.2 應力及變形測試元件:壓力傳感器(量程0 kN~200 kN,精度1%);位移傳感器(軸向量程0 mm~50 mm,精度1 %;徑向量程0 mm~25 mm,精度1 %);數據自動采集系統等。
4.3 溫度傳感器:量程-40℃~+40℃,精度0.2℃。
4.4 冷卻及溫控設備等。
4.5 試驗用含水率、密度測試裝置。

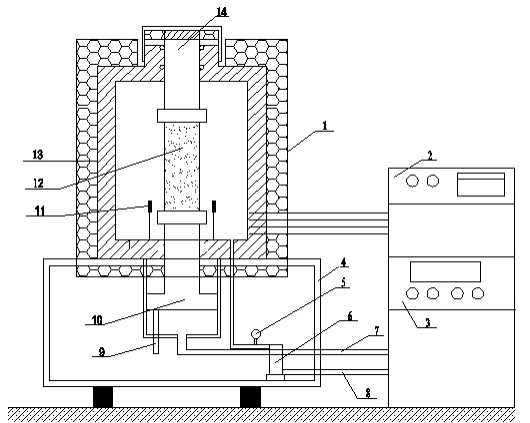
1-油缸 2-制冷系統 3-液壓系統 4-支座 5-圍壓量測裝置 6-體變量測裝置 7-軸壓加載油路8-圍壓加載油路 9-軸向位移傳感器 10-軸向加載活塞 11-溫度傳感器 12-試樣 13-保溫層 14-軸向壓力傳感器
圖1 低溫三軸蠕變試驗儀
5 試樣
5.1 采用凍結原狀土試樣或凍結重塑土試樣,其制備方法按MT/T 593.1中6.2.2和6.2.3的規定進行。
5.2 試樣規格應與MT/T 593.4所采用的試樣規格一致。
5.3 試樣數量:5個(多試樣三軸蠕變)或2個(單試樣分級加載三軸蠕變),其中一個試樣用于進行三軸剪切強度試驗。
6 基本要求
6.1 試驗應在規定的試驗溫度中進行。
6.2 溫度波動度小于等于±0.2℃。
6.3 只有一種試驗溫度時,應選擇-10℃。若有多種試驗溫度時,其中應有-10℃。如果有特殊要求,可另選試驗溫度。
6.4 試驗前各試驗用儀器、設備應校正合格。
7 試驗步驟
7.1 多試樣分別加載三軸壓縮蠕變試驗
7.1.1 核實試樣的來源、編號、密度、含水率和溫度等,并填入附錄A表內,檢查試驗用儀器、設備及測試系統等。
7.1.2 測量試樣尺寸,對凍結后變形的試樣按規定要求進行修正,同時稱重并記錄。
7.1.3 按MT/T593.5中7.1的規定,用一個試樣試驗得到瞬時三軸剪切強度。
7.1.4 確定合適的蠕變加載系數ki,并根據瞬時三軸剪切試驗結果計算出所需軸向荷載和圍壓,填入附錄A表內。
7.1.5 在試樣外套一層乳膠膜,以防含水率變化,將試樣裝在三軸蠕變試驗儀的上下加壓頭之間,。安裝并連接好壓力量測系統、位移量測系統。
7.1.6 施加圍壓,使試樣在規定圍壓下固結穩定。
7.1.7 在恒定圍壓下給試樣迅速加載至所需荷載或應力值,同時記錄時間、變形等,并將其數據填入附錄A表內,試驗過程中試樣所受應力保持穩定,波動度不超過±10kPa。
7.1.8 當試樣變形已穩定(,Ⅰ類蠕變)24h以上或已破壞(Ⅱ類蠕變)時,測試結束。將結束時的時間和變形記入附錄A表內。
7.1.9 卸去荷載,取出試樣,描述其破壞情況,填入附錄A表內。
7.1.10 若需獲得蠕變曲線簇,可根據需要確定幾個不同的蠕變加載系數ki,一般ki按0.3、0.4、0.5、0.7取值。重復7.1.1、7.1.2和7.1.4~7.1.9規定的步驟。
7.2 單試樣分級加載三軸壓縮蠕變試驗
7.2.1 確定各級蠕變加載系數ki,一般ki按0.3、0.4、0.5、0.7取值。
7.2.2 取最小的一級蠕變加載系數,按7.1.1~7.1.7規定各步驟進行。
7.2.3 測定進行到變形已穩定(,Ⅰ類蠕變)或變形速率趨于常數(,Ⅱ類蠕變)24h以上(不超過48h),一級蠕變結束。
7.2.4 依次取不同的蠕變加載系數ki,計算出所需荷載值,重復7.1.7和7.2.3規定的步驟。
7.2.5 當某一級的測試進入第三階段時,不能再進行下一級的加載,可將此級蠕變進行到試樣破壞為止。
7.2.6 按7.1.9規定的步驟進行。
8 計算與繪圖
8.1 應變計算
8.1.1 軸向應變計算
ε1 = Δh/h0 ………………………………………………………………(1)
ε1c = ε1 - εe ……………………………………………………………(2)
式中:
ε1——試樣軸向總應變,從對應于蠕變開始時計算;
Δh——試樣軸向變形量,單位為毫米(mm);
h0——試驗前試樣軸向長度,單位為毫米(mm);
ε1c——試樣軸向蠕變應變;
εe——彈性應變(加載過程中瞬時應變)。
8.1.2 徑向應變計算
ε3 = ΔD/D0 ……………………………………………………………(3)
ε3c = ε3 - ε3e ……………………………………………………………(4)
式中:
ε3——試樣總平均徑向應變;
ΔD——試樣徑向總平均變化量,單位為毫米(mm);
D0——試驗前試樣平均直徑,單位為毫米(mm);
ε3c——試樣平均徑向蠕變應變(從對應的軸向蠕變應變開始時刻計);
ε3e——試樣加恒定蠕變應力后平均瞬時徑向應變(與對應的瞬時軸向應變時間段一致)。
以上為標準部分內容,如需看標準全文,請到相關授權網站購買標準正版。
-
IG541混合氣體滅火系統
IG541混合氣體滅火系統:IG-541滅火系統采用的IG-541混合氣體滅火劑是由大氣層中的氮氣(N2)、氬氣(Ar)和二氧化碳(CO2)三種氣體分別以52%、40%、8%的比例混合而成的一種滅火劑 -
二氧化碳氣體滅火系統
二氧化碳氣體滅火系統:二氧化碳氣體滅火系統由瓶架、滅火劑瓶組、泄漏檢測裝置、容器閥、金屬軟管、單向閥(滅火劑管)、集流管、安全泄漏裝置、選擇閥、信號反饋裝置、滅火劑輸送管、噴嘴、驅動氣體瓶組、電磁驅動 -
七氟丙烷滅火系統
七氟丙烷(HFC—227ea)滅火系統是一種高效能的滅火設備,其滅火劑HFC—ea是一種無色、無味、低毒性、絕緣性好、無二次污染的氣體,對大氣臭氧層的耗損潛能值(ODP)為零,是鹵代烷1211、130 -
手提式干粉滅火器
手提式干粉滅火器適滅火時,可手提或肩扛滅火器快速奔赴火場,在距燃燒處5米左右,放下滅火器。如在室外,應選擇在上風方向噴射。使用的干粉滅火器若是外掛式儲壓式的,操作者應一手緊握噴槍、另一手提起儲氣瓶上的


